Pending!

Virtual Tours!

This modern home is nestled in the center of the community and backed up to a portion of woods that is next to one of the retention ponds. It features a covered front porch, a large deck on the back facing the woods, and a wood composite Smartlap siding. The interior is a modern design with lots of cabinet space, a shiplap LED fireplace in the living room, with all Luxury Vinyl Plank flooring. This is a home purchase on leased land and includes the use of community amenities such as the clubhouse, the pickleball court (no tennis), the outdoor in-ground pool, and common area maintenance. The 2-car garage comes with an automatic door opener. The SEV is based on the fixtures only, i.e., (garage). Lot rent for this site is Premium: $625.00 per month See attached document for more details

2229 Vista View Drive

$345,000

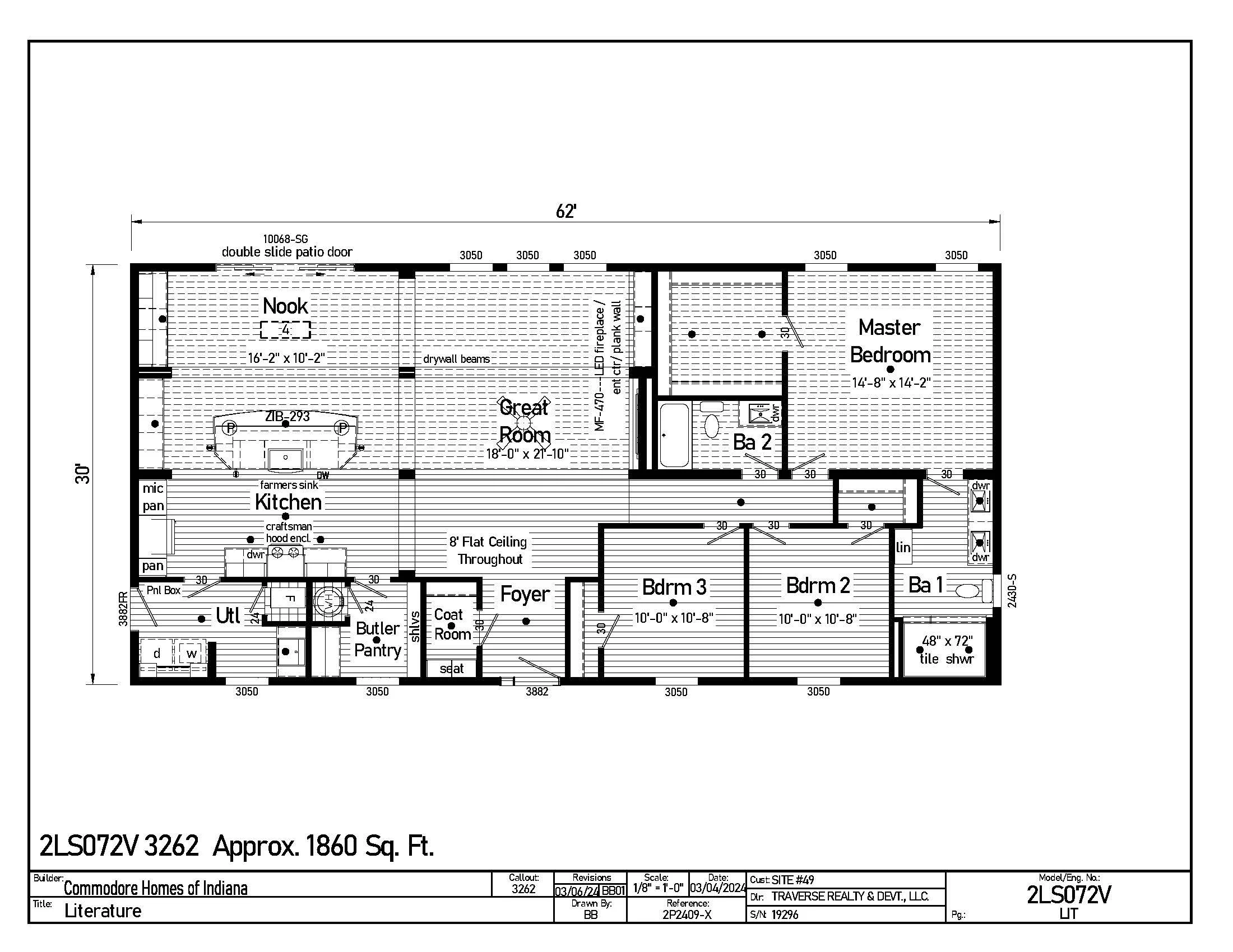
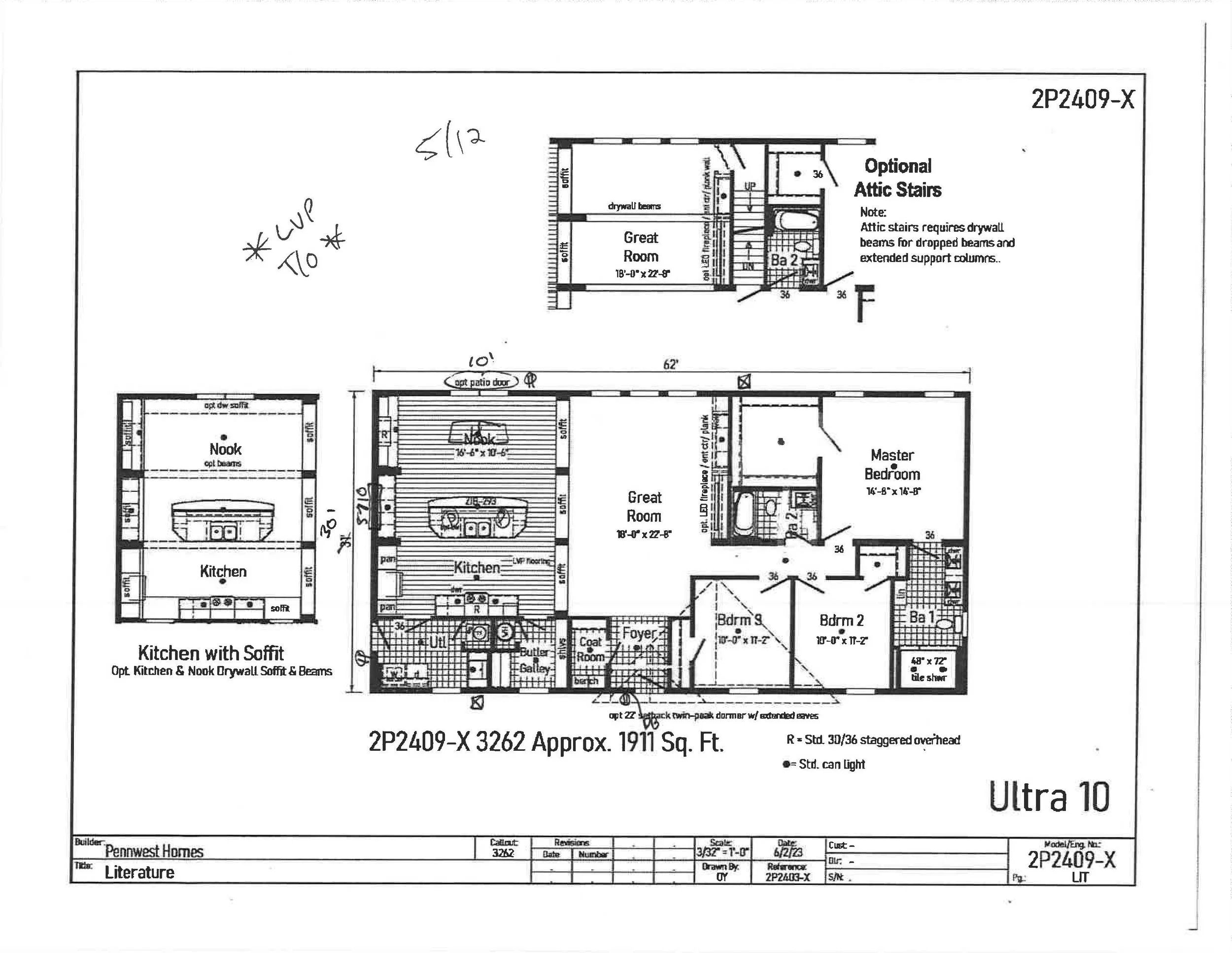
Commodore- Ultra 6

62’x30’ 1,911 Sq Ft

24’ X 24’ Attached Garage

3 Bedrooms/ 2 Bathrooms

Site Rent: $625/per month

Covered Front Porch and Back Deck!

Reach out by phone and email to get more information or to schedule a showing.

Email: clinton@betterlivinghomestc.com

Phone: (231)-421-7328

Click images below to Enlarge!